開発設計
許認可申請
開発行為許可申請
都市計画法第29 条に基づく宅地開発許可申請
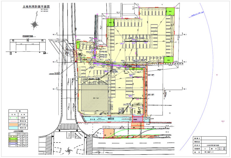
家や店舗などの建築物を建てる目的で、土地の造成や道路の新設・廃止、土地の区画や形質を変更することを「開発行為」と言います。都市計画区域内で開発行為を行うときは、原則として都市計画法上の許可を受ける必要があります。
優良宅地認定申請
租税特別措置法に基づく優良宅地認定申請
開発許可を受ける必要のない宅地造成について、税制上の優遇措置を講じることによる、開発許可の技術的基準に準じ一定水準を備えた優良宅地であることの認定を受けるものです。開発許可と同等の審査が行われます。
道路位置指定申請
建築基準法第42条第1項第5号に基づく道路築造許可申請
建築物を計画している敷地が道路に接していない場合や、新たに小規模な宅地造成を行う場合は、法に定める位置指定道路を築造し、手続きする必要があります。宅造規制法許可申請
公共物用途廃止申請
道路法に関する許可申請
河川法に関する許可申請









